Mặt tiền 5 m có thể làm được nhà Tân Cổ Điển hay không?
đây là câu trả lời cho mọi người nha

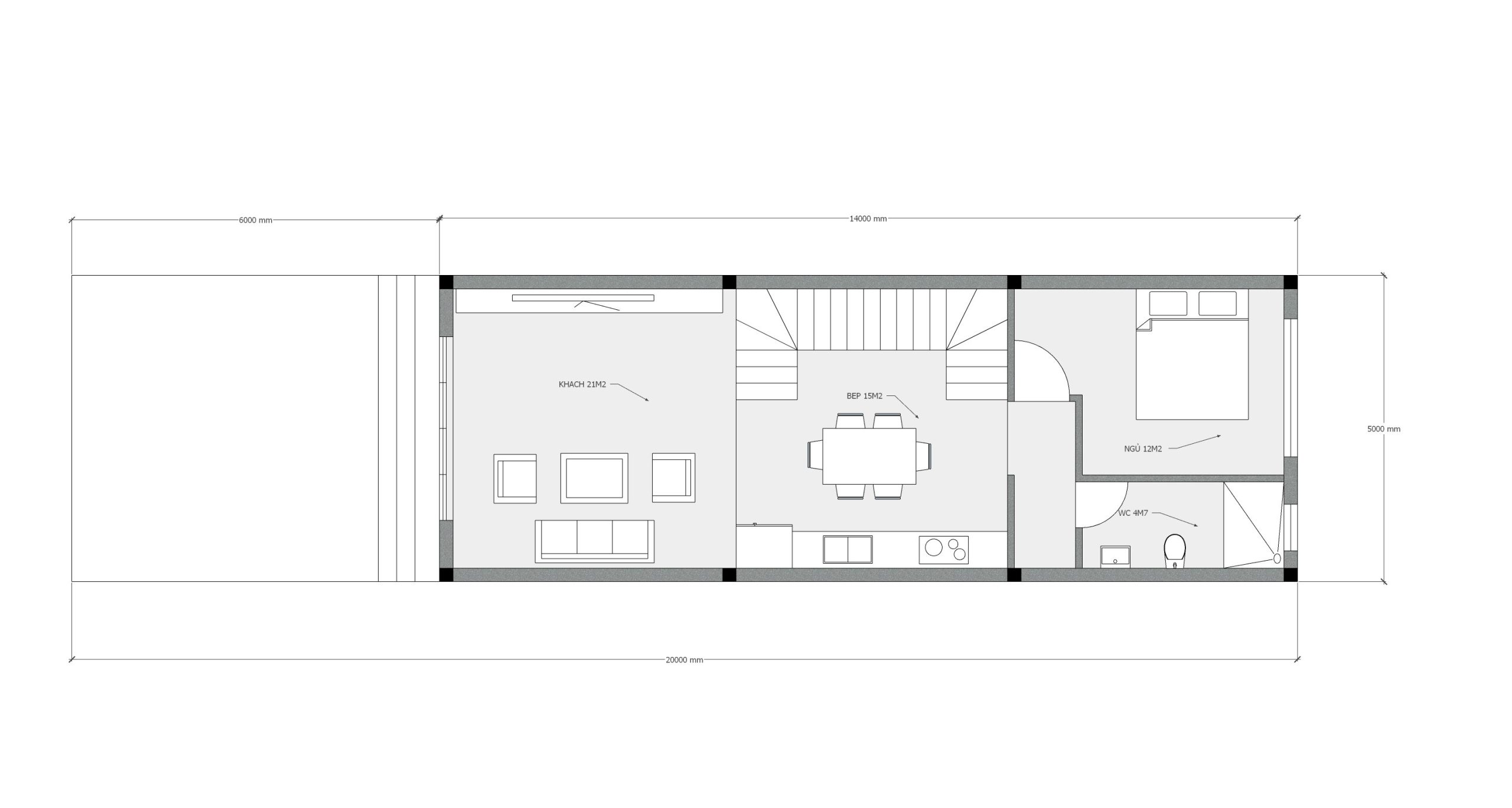
Mẫu nhà tân cổ điển có mặt tiền 5m sâu 14m được Aconstech Việt Nam thiết kế cho gia đình a Toán tại phường Thịnh Đán – TP Thái Nguyên. Với thiết kế tông màu trắng chủ đạo và mặt tiền tầng 1 ốp đá màu vàng kim sang trọng tạo nên nét tinh tế thể hiện phong cách của chủ nhà

Công năng tầng 1 có phòng khách – bếp – phòng ngủ và 1 nhà vệ sinh chung

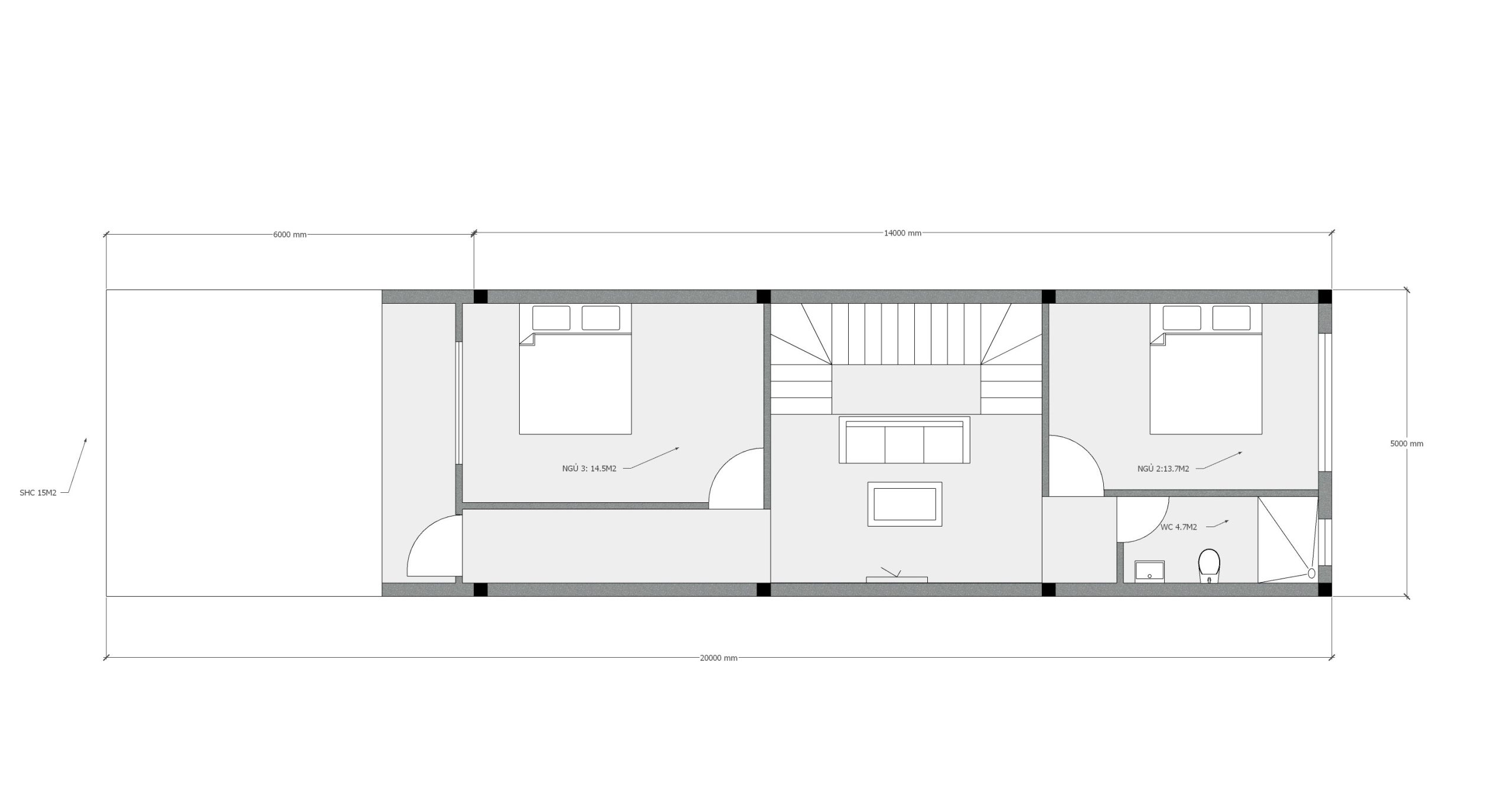
Tầng 2 có 2 phòng ngủ, phòng sinh hoạt chung và 1 nhà vệ sinh chung

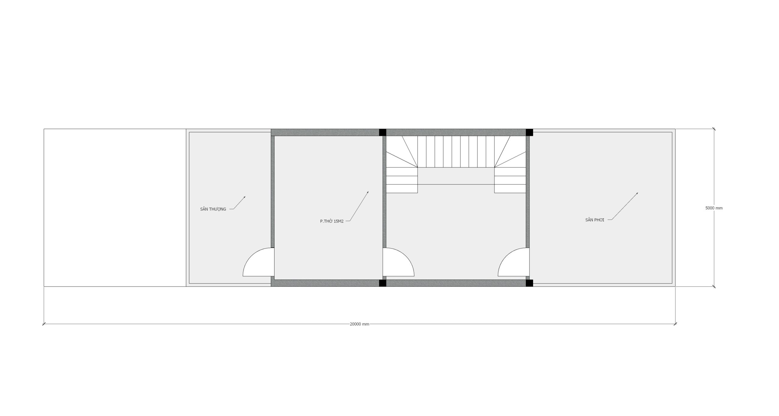
Tầng 3 có phòng thờ và 1 sân phơi rộng
Mọi người có diện tích tương tự thì có thể tham khảo mẫu trên nha, Nếu các bạn đang có nhu cầu thiết kế xây dựng nhà ở thì hãy liên hệ với Aconstech Việt Nam chúng tôi luôn có đỗi ngũ Kiến Trúc sư sẵn sàng tư vấn 24/7
===============================
ACONSTECH VIỆT NAM – THIẾT KẾ THI CÔNG TRỌN GÓI
ĐC: 770 Lương NGọc Quyến, P.Đồng Quang TPTN (ngã 3 bắc nam)
Zalo: 0368.891.892 – 0985.207.191 Tư vấn free 24/7
Website: https://aconstech.net
#AconstechVietNam #bachgiathainguyen #thietkenhathainguyen #noithatthainguyen #bachgiathainguyen
