Aconstech Việt Nam xin giới thiệu đến các bạn mẫu nhà cấp 4 mái lệch do Aconstech thiết kế cho gia đình anh Hoàng tại Phường Quan Triều TP Thái Nguyên. Chi phí hoàn thiện 550 triệu phù hợp cho vợ chồng trẻ và gia đình có chi phí xây dựng thấp.


Với tông màu nâu trắng làm nên phối cảnh mặt tiền tinh tế, thu hút mọi ánh nhìn, thiết kế cổng, tường rào theo khuôn đất tạo thành 1 khối thống nhất cho tổng thể ngôi nhà hoàn thiện đẹp mắt.

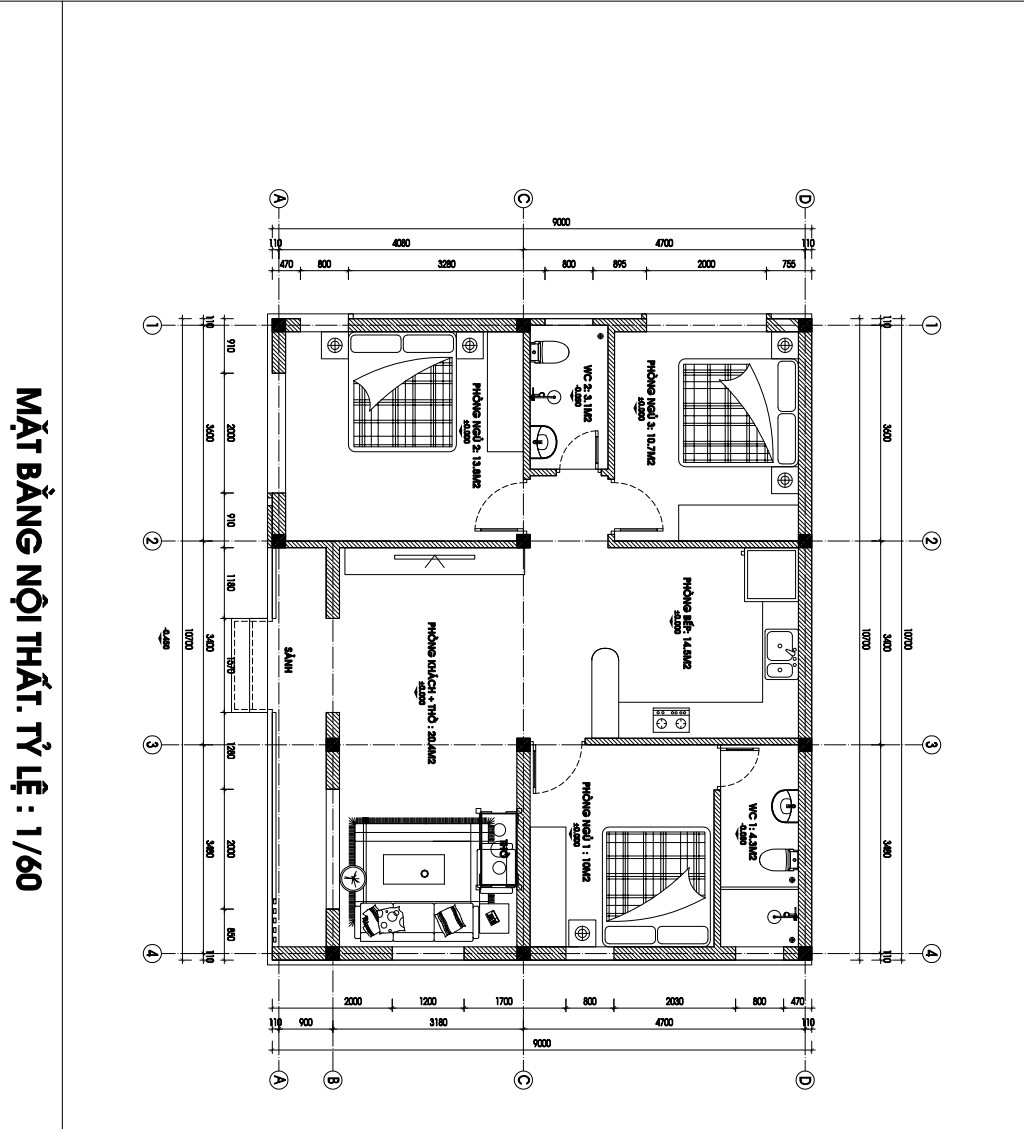
Mặt bằng công năng bao gồm Phòng khách + thờ + bếp + 3 phòng ngủ, trong đó 1 phòng ngủ khép kín.

Nội thất phòng khách với tông màu chủ đạo là mầu nâu trắng tôn lên sự sang trọng tinh tế và thể hiện được phong cách của chủ nhà.

Nếu các bạn yêu thích mẫu này và cần tư vấn thiết kế thì đừng ngần ngại liên hệ ngay cho Aconstech Việt Nam nhé !
ACONSTECH VIỆT NAM – THIẾT KẾ THI CÔNG TRỌN GÓI
ĐC: 770 Lương NGọc Quyến, P.Đồng Quang TPTN (ngã 3 bắc nam)
Zalo: 0985.207.191 Tư vấn free 24/7
Website: https://aconstech.net
#AconstechVietNam #bachgiathainguyen #thietkenhathainguyen #noithatthainguyen #bachgiathainguyen
